- Woonoppervlakte
- Circa 54 m²
- Inhoud
- Circa 208 m³
- Bouwjaar
- Gebouwd in 1955
- Aantal kamers
- 2 kamers (1 slaapkamers)
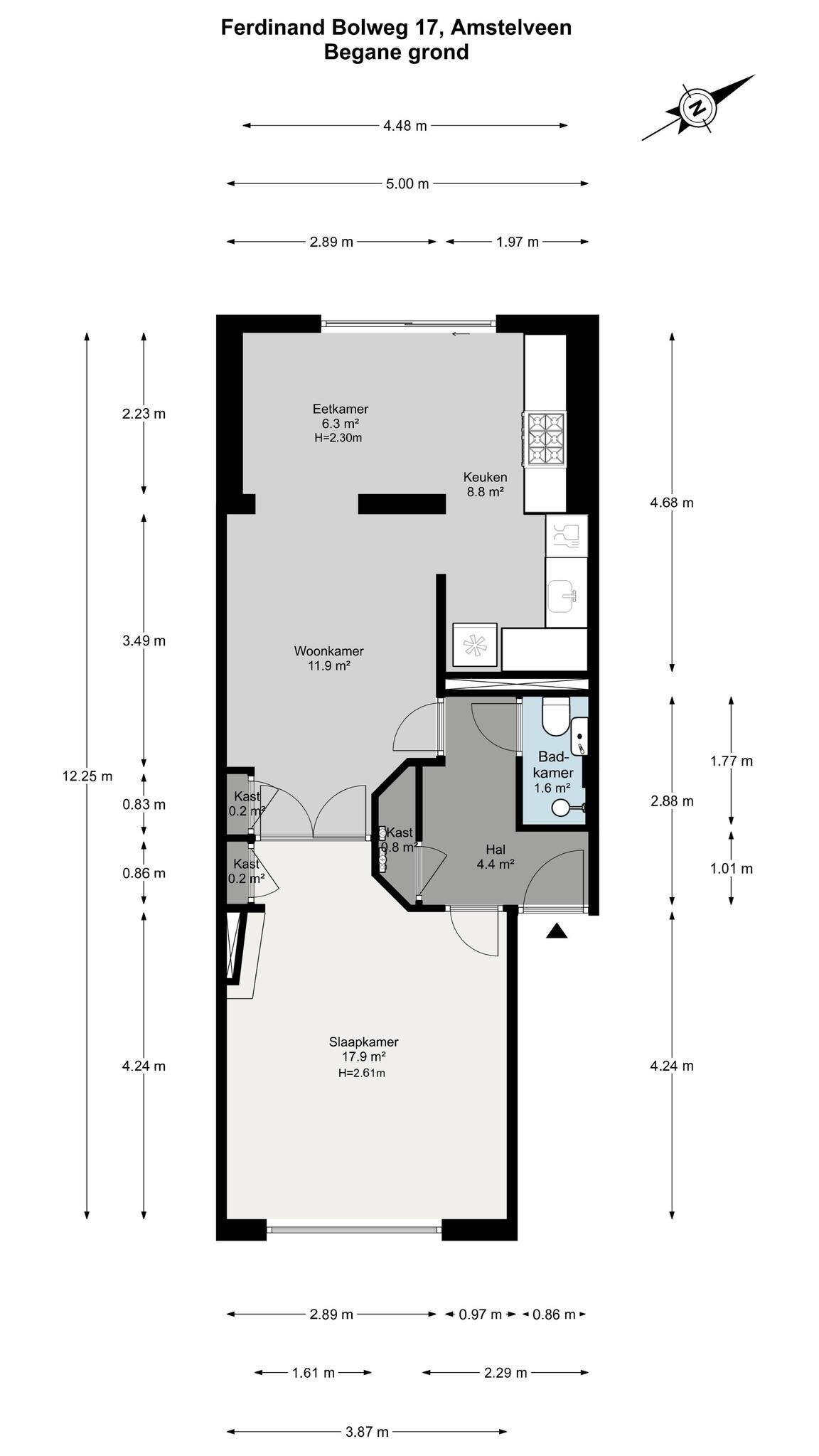
aan de ferdinand bolweg, op een geliefde en centrale locatie nabij het stadshart van amstelveen, bevindt zich deze praktisch ingedeelde benedenwoning van ca. 54 m² met één slaapkamer en een fijne, onderhoudsvrije riante tuin op het westen. de woning is gelegen op de begane grond en beschikt over een gunstige indeling met de woonkamer centraal. het eetgedeelte en de keuken bevinden zich aan de tuinzijde in de strak afgewerkte uitbouw.
dankzij de ligging en het comfortabele woonoppervlak is dit een ideale woning voor starters of levensgenieters die gelijkvloers willen wonen met alle voorzieningen binnen handbereik.
indeling
via de centrale hal bereikt u de woning. eenmaal in de hal biedt deze toegang tot alle vertrekken. aan de voorzijde van de woning bevindt zich de ruime slaapkamer (ca. 17,9 m²) met een plafondhoogte van 2,61 meter en vaste kasten. de badkamer is compact maar compleet en beschikt over een douche, toilet en wastafel.
centraal in de woning bevindt zich de lichte woonkamer, grenzend aan de eetkamer en de halfopen keuken aan de achterzijde. de keuken is functioneel ingericht met boretti oven, een grote koel-, vriescombinatie (2025)een composiet keukenblad. de keuken biedt direct zicht op de ruime achtertuin.
buitenruimte
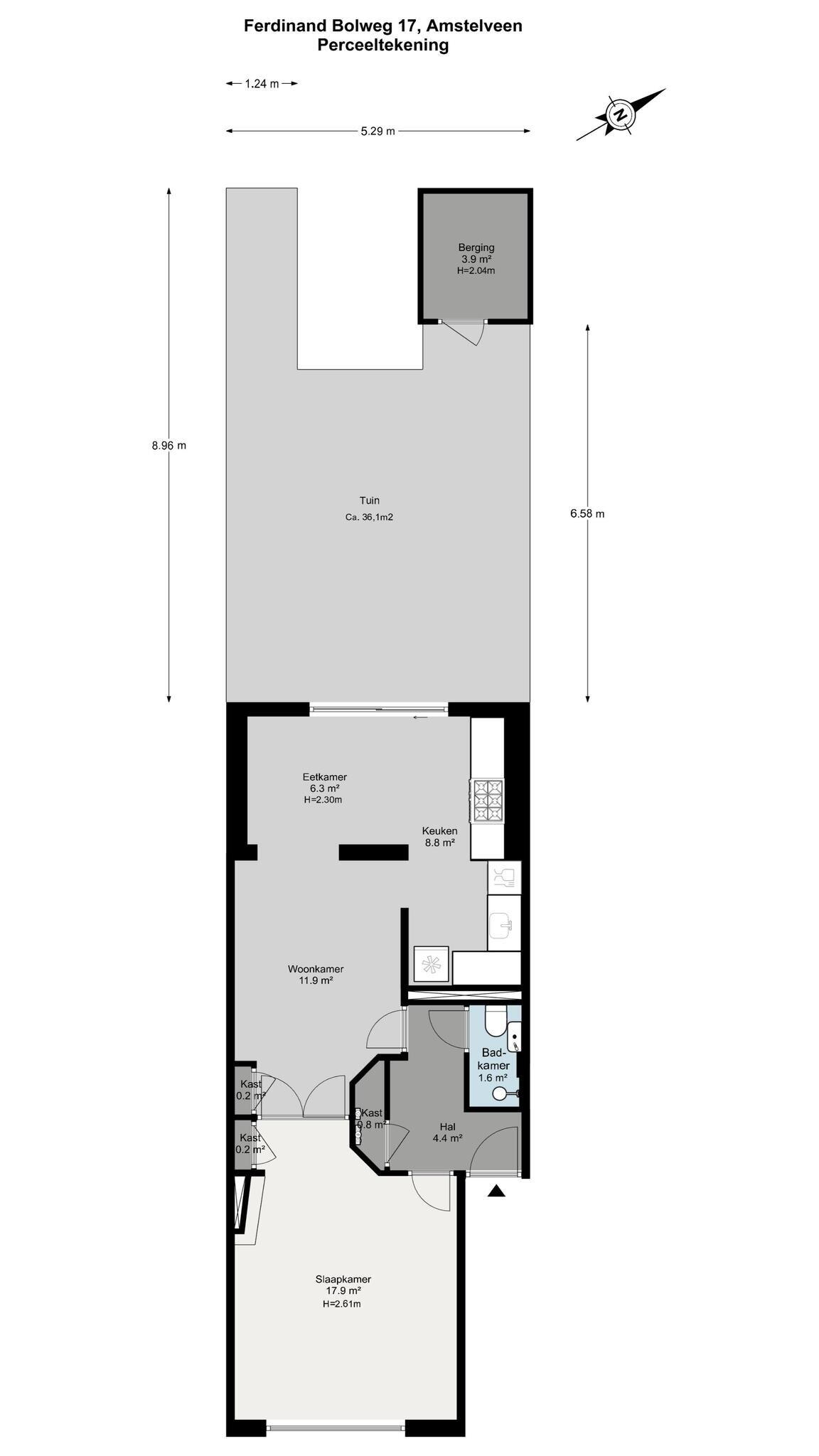
een groot pluspunt van deze woning is de zonnige en onderhoudsvrije westtuin (ca. 36 m²), waar u tot in de avond van de zon kunt genieten. ideaal voor wie houdt van buiten eten, ontspannen in de zon of een groene plek midden in het stadse leven. achterin de tuin bevindt zich een praktische stenen berging (ca. 3,9 m²) en er is een achterom aanwezig.
locatie
de ligging is perfect: rustig wonen en toch op loopafstand van het bruisende stadshart van amstelveen, met een ruim aanbod aan winkels, horeca, de bibliotheek, schouwburg amstelveen en een wekelijkse markt. ook het amsterdamse bos, de poel en openbaar vervoer (tram/bus) zijn snel bereikbaar. de uitvalswegen a9, a10 en a2 liggen op slechts enkele autominuten, wat zorgt voor een uitstekende bereikbaarheid richting amsterdam, schiphol en utrecht.
vve (vereniging van eigenaren) vve ferdinand bolweg 17,19,21, en 23 amstelveen.
• vve met maandelijkse bijdrage van € € 36,-
• kvk inschrijving kvk nummer 34384102
• vve was slapend is nu in oprichting.
bijzonderheden
• gelegen op de begane grond
• heerlijke tuin op het westen
• woonoppervlakte ca. 54 m²
• warm water en verwarming middels cv-ketel intergas
• isolatie door middel van dubbel glas
• energielabel c
• aanvaarding in overleg
meetinstructie
het verkochte is gemeten met gebruikmaking van de meetinstructie, welke is gebaseerd op de normen zoals vastgelegd in nen 2580. de meetinstructie is bedoeld om een meer eenduidige manier van meten toe te passen voor het geven van een indicatie van de gebruiksoppervlakte. de meetinstructie sluit verschillen in meetuitkomsten niet volledig uit door bijvoorbeeld interpretatieverschillen, afrondingen en beperkingen bij het uitvoeren van een meting.
de woning is gemeten door een betrouwbaar professioneel bedrijf en koper vrijwaart de medewerkers van voorma & millenaar makelaars o.g. en de verkoper voor eventuele afwijkingen in de opgegeven maten. koper verklaart in de gelegenheid te zijn gesteld om het verkochte zelf te (laten) meten conform nen 2580.
*** this property is listed by an mva certified expat broker ***
light and comfortable living on the ground floor, approx. 54 m², with a sunny west-facing garden!
located on ferdinand bolweg, in a popular and central area near the stadshart of amstelveen, you'll find this practical ground-floor apartment of approx. 54 m² with one bedroom and a lovely, maintenance-free, spacious west-facing garden. the home is situated on the ground floor and features a favorable layout with the living room centrally located. the dining area and kitchen are on the garden side, within the sleekly finished extension.
thanks to its location and comfortable living space, this is an ideal home for first-time buyers or those who enjoy life and want single-level living with all amenities within easy reach.
layout
you reach the apartment via the central hall. once inside, the hall provides access to all rooms. at the front of the home is the spacious bedroom (approx. 17.9 m²) with a ceiling height of 2.61 meters and fitted wardrobes. the bathroom is compact yet complete, featuring a shower, toilet, and sink.
centrally located in the home is the bright living room, adjacent to the dining room and the semi-open kitchen at the rear. the kitchen is functionally equipped with a boretti oven, a large fridge-freezer (2025), and a composite countertop. the kitchen offers a direct view of the spacious backyard.
outdoor space
a major plus of this home is the sunny and maintenance-free west-facing garden (approx. 36 m²), where you can enjoy the sun until late in the evening. it's ideal for those who love outdoor dining, relaxing in the sun, or having a green oasis amidst city life. at the back of the garden, there's a practical stone storage shed (approx. 3.9 m²) and a back entrance.
location
the location is perfect: quiet living yet within walking distance of the bustling stadshart of amstelveen, with a wide range of shops, restaurants, the library, amstelveen theatre, and a weekly market. the amsterdamse bos, de poel, and public transport (tram/bus) are also quickly accessible. the a9, a10, and a2 highways are just a few minutes' drive away, ensuring excellent accessibility to amsterdam, schiphol, and utrecht.
owners' association (vve)
• vve ferdinand bolweg 17, 19, 21, and 23 amstelveen.
• vve with a monthly contribution of €36,-
• chamber of commerce registration: kvk number 34384102
the vve was dormant and is now being established.
specifics
• located on the ground floor
• lovely west-facing garden
• living area approx. 54 m²
• hot water and heating via an intergas central heating boiler
• insulation through double glazing
• energy label c
• acceptance in consultation
measurement instruction
the property has been measured using the measurement instruction, which is based on the standards laid down in nen 2580. the measurement instruction is intended to apply a more unambiguous method of measurement for providing an indication of the usable area. the measurement instruction does not completely exclude differences in measurement results due to, for example, differences in interpretation, rounding, and limitations in carrying out a measurement.
the property has been measured by a reliable professional company, and the buyer indemnifies the employees of voorma & millenaar makelaars o.g. and the seller for any deviations in the specified dimensions. the buyer declares to have been given the opportunity to measure the property themselves (or have it measured) in accordance with nen 2580.
Overdracht
- Vraagprijs
- € 375.000 k.k.
- Status
- Verkocht
- Aanvaarding
- In overleg
Bouw
- Object type
- Benedenwoning, appartement
- Soort bouw
- Bestaande bouw
- Bouwjaar
- 1955
- Soort dak
- Zadeldak
Oppervlakte en inhoud
- Woonoppervlakte
- 54 m²
- Inhoud
- 208 m³
- Externe bergruimte
- 4 m²
Indeling
- Aantal kamers
- 2 kamers (1 slaapkamers)
- Aantal badkamers
- 1 badkamer
- Badkamervoorzieningen
- Toilet, douche, wastafel
- Aantal woonlagen
- 1 woonlaag
- Voorzieningen
- Tv-kabel
Energie
- Energielabel
- C
- Energielabel registratie
- 20-06-2025
- Verwarming
- Cv-ketel
- Warm water
- Cv-ketel
- Cv ketel
- Combiketel gas gestookt uit 2006 (eigendom)
Buitenruimte
- Ligging
- In woonwijk
- Tuin
- Achtertuin
- Afmetingen achtertuin
- 25 m² (5 meter diep en 5 meter breed)
- ligging tuin
- Gelegen op het noordwesten
Bergruimte
- Schuur / berging
- Vrijstaand steen
Garage
- Soort garage
- Geen garage
Parkeergelegenheid
- Soort parkeergelegenheid
- Betaald parkeren, parkeervergunningen
VvE checklist
- Inschrijving KvK
- Ja
- Jaarlijkse vergadering
- Ja
- Periodieke bijdrage
- Ja
- Reservefonds aanwezig
- Ja
- Opstalverzekering
- Ja
Energieverbruik in Amstelveen
Energielabel deze woning
Energielabel C
Publicatie energielabel: 20-06-2025
Stroomverbruik per jaar
(Gemiddelde appartement in Amstelveen)
Gasverbruik per jaar
(Gemiddelde appartement in Amstelveen)
* Cijfers zijn afkomstig van het CBS en bedoeld als indicatie en kunnen verschillen voor deze woning
Indicatie hypotheeklasten
Eigen inleg:
Spaargeld / overwaarde
Rente:
Laagste 10-jaars rente
Laagste 10-jaars rente
2,76% - Centraal Beheer Groen... - NHG
2,98% - Centraal Beheer Groen... - 80%
Laagste 20-jaars rente
3,19% - Centraal Beheer Groen... - NHG
3,31% - Centraal Beheer Groen... - 80%
Laagste 30-jaars rente
3,34% - Centraal Beheer Groen... - NHG
3,47% - Centraal Beheer Groen... - 80%
Hypotheek:
Bruto maandlasten: € 0 p/m
Netto maandlasten: € 0 p/m
Hoe berekenen we dit?
Het rentepercentage is gebaseerd op de laagste 10-jaars vaste rente voor één hypotheekdeel. De vermelde rente (2.76% met NHG) is gecontroleerd op 25-09-2025. Deze berekening is gebaseerd op een annuïteitenhypotheek die volledig wordt afgelost, waarbij de maandlasten gedurende de gehele looptijd gelijk blijven. De werkelijke rente en netto maandlasten kunnen variëren, afhankelijk van uw persoonlijke situatie en de hypotheekverstrekker. Raadpleeg een financieel adviseur voor een nauwkeurige berekening en advies. Aan deze berekening kunnen geen rechten worden ontleend; het dient enkel als indicatie.
Documentatie
Kadastrale kaart
Leefomgeving
WOZ waarderapport
BAG uittreksel
Plattegronden PDF
Brochure
Bezoek onze website
Bezichtiging
Bod uitbrengen
Waardebepaling
Zoekopdracht
Alles downloaden
Zonnegrenzen bekijken
Op de kaart
Inwoners in Amstelveen
Cijfers voor postcodegebied 1181
- Totaal aantal inwoners
- 20740 inwoners
- Mannen
- 48%
- Vrouwen
- 52%
Inwoners in Amstelveen
Cijfers voor postcodegebied 1181
- tot 15 jaar
- 22%
- 15 tot 25 jaar
- 9%
- 25 tot 35 jaar
- 27%
- 45 tot 65 jaar
- 25%
- 65 en ouder
- 17%
Huishoudens in Amstelveen
Cijfers voor postcodegebied 1181
- Eenpersoons zonder kinderen
- 38%
- Meerpersoons zonder kinderen
- 23%
- Huishoudens zonder kinderen
- 61%
Huishoudens in Amstelveen
Cijfers voor postcodegebied 1181
- Huishoudens met één kind
- 7%
- Huishoudens met meerdere kinderen
- 33%
- Huishoudens met kinderen
- 40%
Woningen in Amstelveen
Cijfers voor postcodegebied 1181
- Woningen voor 1945
- 21%
- Woningen tussen 1945 en 1965
- 53%
- Woningen tussen 1965 en 1975
- 14%
- Woningen tussen 1975 en 1985
- 1%
- Woningen tussen 1985 en 1995
- 4%
Woningen in Amstelveen
Cijfers voor postcodegebied 1181
- Woningen tussen 1995 en 2005
- 5%
- Woningen tussen 2005 en 2015
- 1%
- Woningen na 2015
- 2%
- Huurwoningen
- 40%
- Koopwoningen
- 60%
Overige in Amstelveen
Cijfers voor postcodegebied 1181
- Gemiddelde WOZ waarde
- € 516.000,-
- Personen onder de 65 met uitkering
- 3%
Overige in Amstelveen
Cijfers voor postcodegebied 1181
- Adressen per km²
- 3257
- Stedelijkheid (schaal 1 op 5)
- 100%


Voorma & Millenaar makelaars
Indien u vragen heeft of u wilt een bezichtiging inplannen, dan kunt u gebruik maken van het formulier hiernaast. Er zal daarna op korte termijn contact met u worden opgenomen.
Amsterdamseweg 176
1182 HL, Amstelveen
020 - 641 8694 amsterdam@voormamillenaar.nl www.voormamillenaar.nlContact opnemen
Wie is Voorma & Millenaar?
Voorma & Millenaar makelaars, opgericht in 1966, is al geruime tijd een vertrouwde naam in de Amstelveense woningmarkt. Ons toegankelijke kantoor is gevestigd aan de Amsterdamseweg in Amstelveen en wordt ondersteund door een enthousiast en proactief team dat altijd voor u klaarstaat.
Onze expertise ligt in het adviseren en bemiddelen op de Amstelveense woningmarkt, evenals in de omliggende gemeenten. Bij Voorma & Millenaar staat het leveren van uitstekende service centraal, waarbij we de belangen van onze klanten vooropstellen.
Ons hele team, gevestigd aan de Amsterdamseweg, staat voor u klaar! Het bestaat uit gedreven professionals die alles op alles zetten om de beste resultaten te behalen. Dankzij deze toewijding onderscheiden we ons al jaren met ongeëvenaarde resultaten en service.

Nieuwste reviews
-
Wibautstraat 52 L
Het contact loopt zeer goed, zeer betrokken makelaar die de klant steeds op de hoogte stelt van het gehele verkoopproces.
-
Sleewijkstraat 52
Jill is een fijne en deskundige Makelaar die weet hoe het werkt!Altijd bereikbaar ondanks haar volle agenda.
-
Maarten Lutherweg 190
Daadkrachtig, zeer goed netwerk, goede online omgeving waar alle documenten worden beheerd, aanbevolen.